Quartiersentwicklung Blaue Lehmkuhle
Blaue Lehmkuhle, 23701 Eutin



Eckdaten
Objektart
Grundstück
Nutzungsart
Wohnen
Vermarktungsart
Kauf
Ort
23701 Eutin
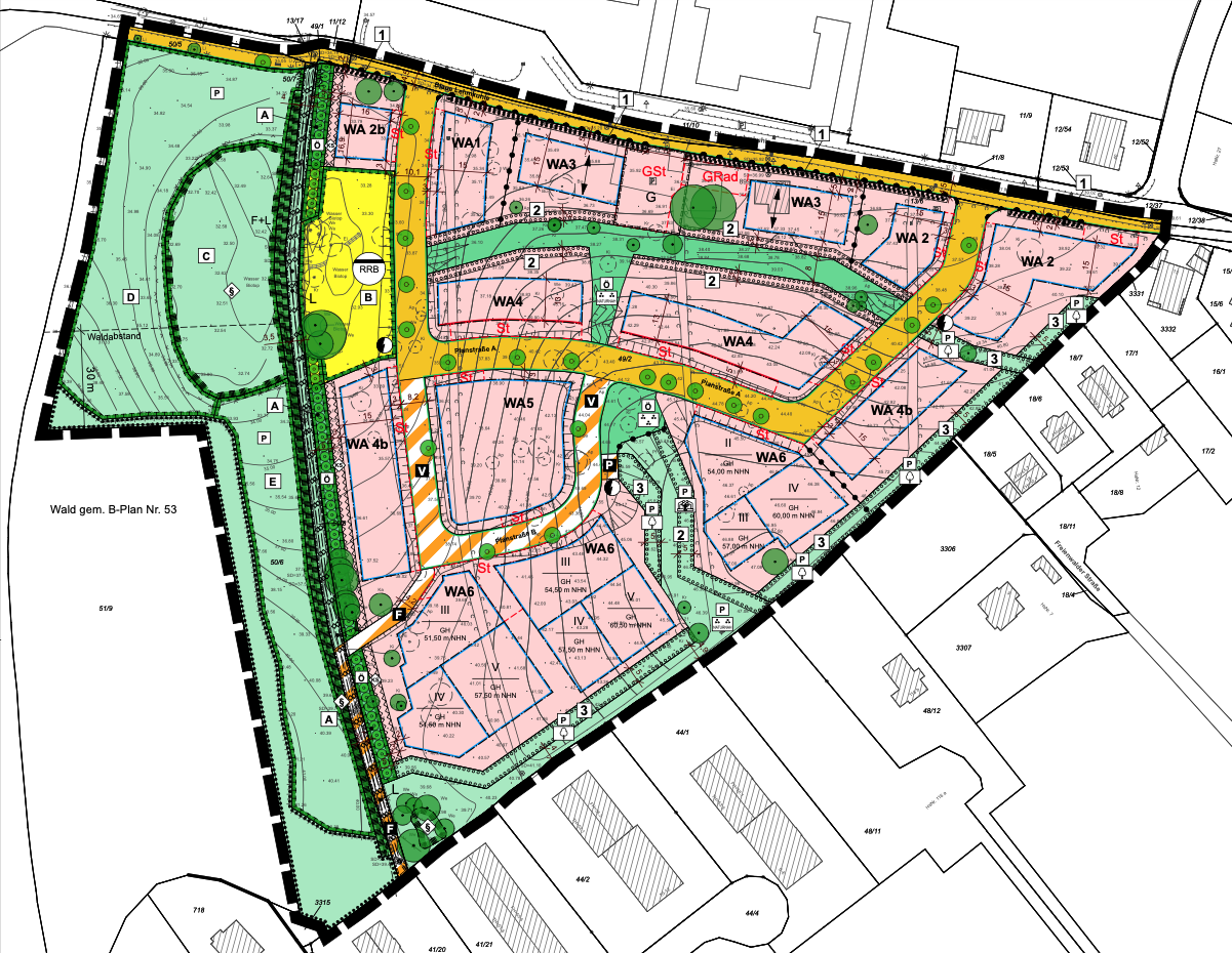
Baufelder zum Verkauf
10
Größe Baufelder
638 m² - 2.862 m²
Realisierbare Wohnflächen
468 m² - 1.809 m²
Preis
Auf Anfrage
Außenprovision
3,57 % inkl. MwSt.
Baufelder zum Kauf
-
Mögliche Bebauung: EFH, DH, MFH
Fläche Baufeld: 638 m²
Überbaubare Fläche (max.): 255 m²
Wohnfläche ca.: 478 m²
Anzahl Wohneinheiten: 2 - 4
-
Mögliche Bebauung: EFH, DH, MFH
Fläche Baufeld: 1.003 m²
Überbaubare Fläche (max.): 250 m²
Wohnfläche ca.: 479 m²
Anzahl Wohneinheiten: 2 - 4
-
Mögliche Bebauung: 2 Reihenhäuser
Fläche Baufeld: 2.862 m²
Überbaubare Fläche (max.): 930 m²
Wohnfläche ca.: 1.918 m²
Anzahl Wohneinheiten: 12
-
Mögliche Bebauung: EFH, DH, MFH
Fläche Baufeld: 834 m²
Überbaubare Fläche (max.): 250 m²
Wohnfläche ca.: 468 m²
Anzahl Wohneinheiten: 2 - 4
-
Mögliche Bebauung: EFH, DH, MFH
Fläche Baufeld: 1.632 m²
Überbaubare Fläche (max.): 489 m²
Wohnfläche ca.: 916 m²
Anzahl Wohneinheiten: 3 - 6
-
Mögliche Bebauung: EFH, DH, MFH
Fläche Baufeld: 1.267 m²
Überbaubare Fläche (max.): 380 m²
Wohnfläche ca.: 783 m²
Anzahl Wohneinheiten: 2 - 8
-
Mögliche Bebauung: EFH, DH, MFH
Fläche Baufeld: 2.360 m²
Überbaubare Fläche (max.): 708 m²
Wohnfläche ca.: 1.460 m²
Anzahl Wohneinheiten: 4 - 16
-
Mögliche Bebauung: EFH, DH, MFH
Fläche Baufeld: 1.336 m²
Überbaubare Fläche (max.): 534 m²
Wohnfläche ca.: 1.102 m²
Anzahl Wohneinheiten: 4 - 10
-
Mögliche Bebauung: EFH, DH, MFH
Fläche Baufeld: 1.644 m²
Überbaubare Fläche (max.): 657 m²
Wohnfläche ca.: 1.365 m²
Anzahl Wohneinheiten: 3 - 12
-
Mögliche Bebauung: EFH, DH, MFH
Fläche Baufeld: 2.010 m²
Überbaubare Fläche (max.): 804 m²
Wohnfläche ca.: 1.809 m²
Anzahl Wohneinheiten: 16 - 24
An unsere Privatkunden - Schnell sein lohnt sich!
Sie haben Interesse an einer fertiggestellten Eigentumswohnung, Doppelhaushälfte, Reihenhaus oder Einfamilienhaus zum Kauf oder zur Miete, dann nehmen Sie gerne Kontakt mit uns auf, sodass wir Sie als Interessent hinterlegen können.
Ihre Vorteile auf einen Blick:
Frühzeitige Information: Sie erhalten als Erster eine Benachrichtigung, sobald ein Bauherr für ein neues Baufeld feststeht.
Exklusive Einblicke: Vorabinformationen zu geplanten Haustypen, Ausstattungsvarianten und möglichen Grundrissen.
Begrenzte Kontingente: In beliebten Quartieren sind die verfügbaren Einheiten schnell vergeben – sichern Sie sich Ihren Platz auf der Interessentenliste.
Lage
Die Quartiersentwicklung „Blaue Lehmkuhle“ entsteht im südwestlichen Teil von Eutin auf dem Gelände einer ehemaligen Kleingartenanlage. Die Lage zeichnet sich durch ihre ruhige Umgebung und die Nähe zur Natur aus, während das Stadtzentrum mit seinen vielfältigen Einkaufsmöglichkeiten, Schulen und kulturellen Angeboten schnell erreichbar ist.

Klingt interessant?
Lassen Sie uns über das Projekt austauschen. Hinterlegen Sie einfach Ihre Kontaktdaten, wir melden uns bei Ihnen.